天伊阁116㎡现代
2019-12-09 18:21:55 查看人数 1194
案例面积:116㎡
案例户型:二居室
装修造价:约12万
案例风格:北欧
客户是年轻人,自主创业者,对空间的休闲性追求比较高,改造了次卧室为开放式空间,所以对设计的个性化要求比较高,但是平时也比较忙,没时间打理装修,对此次房屋的装修期望值很高。经过多次沟通,很不容易确定了此次装修的基调。
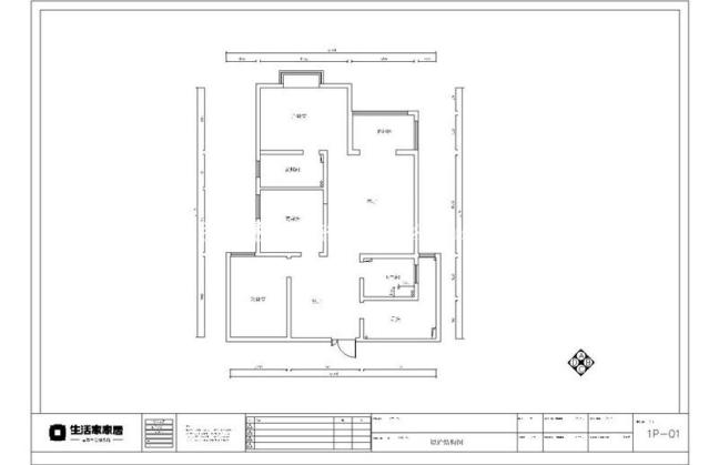
户型图
户型纯南户型,三室两厅两卫,餐厨空间衔接很好,动线顺畅,次卧室空间尺寸宽敞,房屋光线好,明厨明卫,居住空间健康度很好。不足之处,餐厅光线一般,客厅布局略影响动线。
客厅
客厅主题墙采用了幕布式的设计,主题色调浅灰色,地面全部用的木地板,木色和灰色的搭配营造出高级的感觉。
餐厅
餐厅空间的主题主要是靠酒柜来装饰这个空间,上虚下实,实用与美观都可兼顾到。
