保利春天里108现代
2019-12-10 09:17:43 查看人数 839
案例面积:108㎡
案例户型:四居室
装修造价:约17万
案例风格:现代
户型各房间设计规范合理,南北通透,采光充足。客厅开间4.5米,餐厅2米。客厅外带有阳台。主卧开间3.48米,配备独立衣帽间,主卫有6.8平,空间可以满足所有功能需求。厨房9坪还有带有独立洗衣房。空间功能齐全。
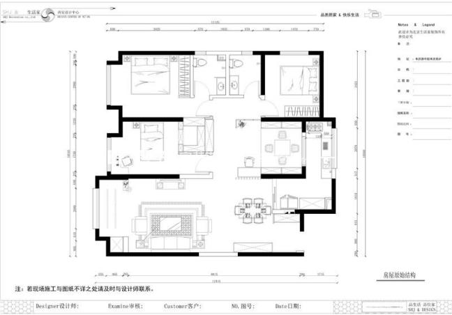
户型图
四房两厅两卫 建筑面积大约:108㎡ 户型各房间设计规范合理,南北通透,采光充足。客厅开间4.3米,餐厅4.1米。客厅外带有阳台。主卧开间5.15米,是较为宽大的卧室开间尺寸,门和窗的位置也合理。主卫有6.8平,空间可以满足所有功能需求。厨房9坪还有带有独立洗衣房。空间功能齐全。
客厅
根据客户实际居住情况在进户门右侧增设内嵌收纳鞋柜,拓深,避免换季整理鞋柜的麻烦。同时在鞋柜的南端做了和厨房推拉门同款屏风,给餐桌留出空间。砸掉厨房隔墙改成推拉门,同时打通洗衣阳台,并把洗切炒功能迁移到采光更好的洗衣阳台。砸除书房部分墙体,让狭长的过道看起来更开阔,又利用了装饰隔断,让开放式书房兼具娱乐储物多功能空间既开阔又独立。放大客餐厅过道空间,整体大气有层次感,取代传统客厅空间的视觉中心单一,中厅视角呈现长厅的采光和对流.....
餐厅
餐厅的整体色调和客厅相互辉映,橙色的背景挂画显得格外的高级,顶面和墙面同样加上金属线条显得空间特别的明朗。白色的钢琴安安静静的摆放在哪里,等着主人去抚摸它......
