龙湖源著150㎡新中式
2019-12-09 18:16:48 查看人数 1352
案例面积:150㎡
案例户型:三居室
装修造价:约20万
案例风格:新中式
把新中式风格融入到现代化的环境中,使之相结合,是对于传统中式风格的另一种诠释和表现。由于现在的家居装饰的居室,都是在生活在快节奏的环境中,同时城市的环境又是一个现代化的设计体现,所以风格的设计应该与环境相互融洽相处,所以所设计的新中式风格应该与现代化的环境相互适应。体现新中式的独特美。
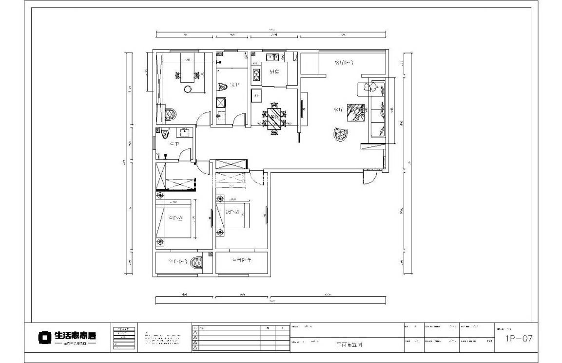
户型图
三室两厅一厨二卫空间 建筑面积大约:150㎡ 户型各房间设计规范合理。客厅开间4.28米,方形空间有利于客厅内部的布置,空间宽敞且客厅外带有阳台,能够直接连接室外空间。餐厅及入户区空间开敞,空间利用率不高。主卧开间3.69米,是较为宽大的卧室开间尺寸,门和窗的位置也合理。
客厅
1、客厅以简单素雅为主,家具以原木色家具为主,用山水作为背景,体现中式的韵味。 2、入户门左侧位置增加鞋帽柜;右侧配有餐边柜与卡座区。 3、客户不喜欢空间压抑,所以做的敞开设计。以空间摆设,布局来增加空间层次感。 4、空间采用无主灯的点光源设计,增加现代元素,再搭配一些木制线条,使空间更加年轻化。
卧室
1,由于客户心态向往年轻活力,主卧室空间风格更加趋向于现代风格. 2,选材和空间感觉上以现代风格为主,适当的加入一点中式色彩,是空间与空间更加和谐。 3,主卧室空间主要以休息、休闲、储物等空间功能。 4,整体的空间用岩板搭配中式质感壁布,以麻质暖色墙面为主,衬托墙面硬包及壁灯,使主卧空间和谐,既有中式的素雅,谧静;也有现代风格的时尚与潮流。
