万达天樾 +148+现代轻奢
2019-12-09 18:06:19 查看人数 834
案例面积:148㎡
案例户型:二居室
装修造价:约21万
案例风格:北欧
家是充满韵律的空间,应该让您享受到最大的舒适及放松;家应达到人与空间最大程度的和谐,并要在和谐中不时来一点起伏;设计是把复杂变成简单,把不合理变成合理,把普通平凡变成伟大
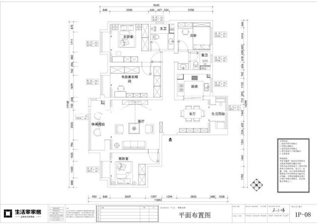
户型图
三房两厅两卫 建筑面积大约:148㎡ 户型各房间设计规范合理。南北通透,客餐厅开间4.1米,黄金进深和开间比例,有利于客餐厅内部的布置。客餐厅都外带有阳台,主次卧朝南,采光较好,门和窗的位置也合理。主卧门正对过道,采用整体全屋定制,床、衣柜、书桌、书柜一应俱全。
客厅
客厅的设计力求沉稳大气,以现代人的审美需求来打造富有传统韵味的细节,彰显出现代轻奢的格调,沙发背景采用硬包一气而成,凸显主墙面的沉稳大气,不锈钢线条点缀,顶面不锈钢线条点缀处理,配上现代吊灯重新诠释定义了轻奢风格。
卧室
主卧以现代人的审美需求来打造富有传统韵味的细节,彰显出现代轻奢的格调,顶面双层石膏板线条线条处理,解决传统空调出风口和角线问题,卧室做窗帘盒处理,使顶面线条更加完整,床头考虑吊线灯,凸显主空间的沉稳大气,配上鱼骨拼地板,重新诠释轻奢风格。
