恒基碧翠锦华+102+轻奢风格
2019-11-22 10:27:50 查看人数 404
案例面积:102㎡
案例户型:二居室
装修造价:约15万
案例风格:轻奢
轻奢风格是一种更尊重生活品质的家具行业创新模式,与财富多寡、地位高低无关,它代表着消费者对高品质家居生活的追求。
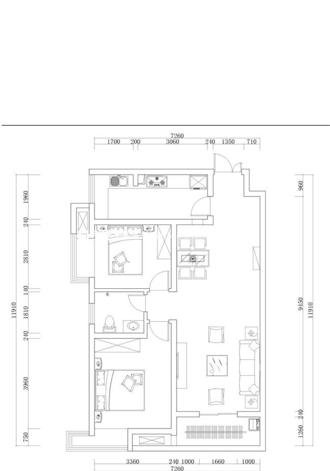
户型图
该原始户型为两室二厅一厨一卫的平层,朝南户型,整个房型区域比较规整,采光非常好,没有浪费的空间,业主希望在设计时满足风格要求,但又不显得传统。
客厅
业主本来就喜欢安静复古的环境,作为居家的情况将自己的客厅在装修上面简单化的处理,并后期以软装的配饰和色彩的感觉来调解出自己想要的感觉。当下班回家后看到客厅简单而不凌乱的感觉会让自己身心非常舒适,业主本就工作非常忙,回到家可以暂时逃离现实的纷扰,舒适地放松身心
卧室
原本业主希望将整个房间作为工业风的感觉来设计,在讨论中只是单纯将主卧室搭配为自己喜欢的工业风,整个房间以大面积的灰色调作为主色,选择卡其色作为辅助色,让其房间不会太冷,暖色系让整个卧室充满了亮点并且舒适。整体也是业主本人喜欢的。
