紫郡华府+145+新中式
2019-11-22 10:27:50 查看人数 507
案例面积:145㎡
案例户型:三居室
装修造价:约24万
案例风格:新中式
家在中国人眼中不仅仅是一个住所,一个简单生活的地方。家更是一个心的归宿,是流躺在血脉里的深沉情愫,所以,在本案设计中会赋于空间气度与温度,在细节里体现艺术的传承和时光的印记
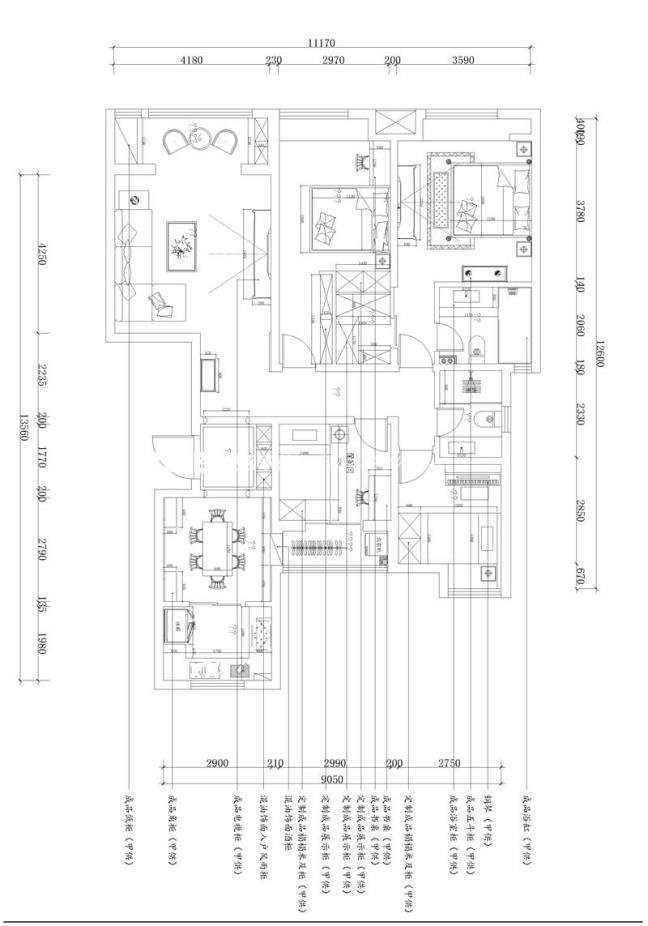
户型图
该原始户型为三室二厅一厨两卫的平层,可以说是南北通透,整个房型区域比较规整,采光非常好,没有浪费的空间,业主希望在设计时满足风格要求,但又不显得传统。
客厅
业主本来就喜欢清新雅致的生活环境,作为居家的情况将自己的客厅在中式风格装修上面做了简单化的处理,并后期以软装的配饰和色彩的感觉来调解出自己想要的感觉。布艺材质配上浅色系的沙发整体打破原有的中式感觉,突出了房间的亮点。
卧室
业主有个5岁左右的男孩子,他想给孩子一个温馨而又充满童真的房间,并且带有小男孩的天性,整体房间大面积以蓝色为主色调。低调而养眼的背景墙色在清新蓝色床单的撑托下,整个儿童房的可爱感便满溢了出来。个性别致的硬装下,选择了深色的蓝,让房间变得更加的亮眼、生动,好像孩子活泼欢快的心情。
