华远君城+150+美式轻奢
2019-11-22 10:27:49 查看人数 382
案例面积:150㎡
案例户型:四居室
装修造价:约25万
案例风格:美式
美式轻奢风格是一种更尊重生活品质的家具行业创新模式,与财富多寡、地位高低无关,它代表着消费者对高品质家居生活的追求。美式风格的家具当然也是不可缺少的。
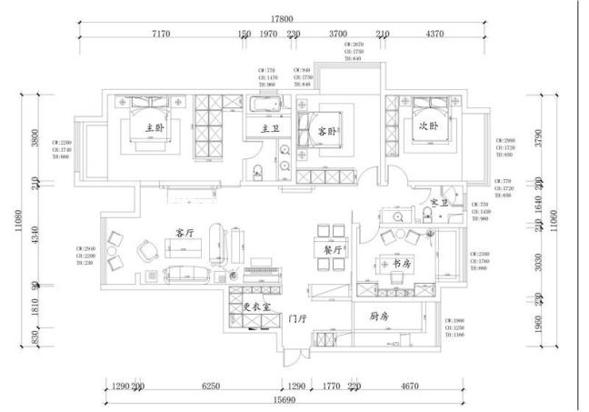
户型图
该原始户型为四室二厅一厨两卫的平层,可以说是南北通透,整个房型区域比较规整,采光非常好,没有浪费的空间,业主希望在设计时满足风格要求,但又不显得传统。
客厅
业主家整体以浅、白基调的装修,配以色彩鲜明的对比色家具,金色元素做点缀,精致的家具,极力呈现轻奢品质。铜质的茶几和边几,玻璃和大理石台面还有瓷质花瓶的穿插又形成了极富层次感的虚实搭配。简单而不凌乱的感觉会让自己身心非常舒适,可以暂时逃离现实的纷扰。
卧室
卧室的整体装修清新精致,大面积白色的墙面,配上清雅的蓝色不仅能营造自然舒适的睡眠氛围,更具大方自然。以金属质感的灯具来提升下整个空间的层次感。业主家的小孩是个初中女孩,女孩天性喜欢温馨、梦幻而又舒适的空间,所以整体以粉色和白色相结合。当清晨的阳光照射在屋内,让人感觉整个房间充满了大地的宠爱,仿佛整个空间弥漫着调皮的精灵一般。把天地间一切空虚盈满,纤绝的尘陌。
