绿地国际生态城+115平+古典美式
2019-11-22 10:10:12 查看人数 386
案例面积:115㎡
案例户型:三居室
装修造价:约18万
案例风格:美式
随着古典风格的再度回潮,独具复古味道的美式古典风格家具以古朴的色调、天然的材质和深沉而含蓄的风格,受到时尚一族的青睐。美式乡村风格摒弃了繁琐与奢华,兼具古典主义的优美造型与新古典主义的功能配备,既简洁明快,又便于打理,更为适合现代人的日常使用。
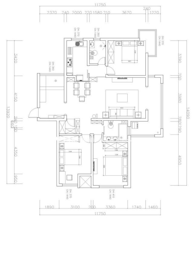
户型图
该原始户型为三室二厅一厨一卫的平层,朝南户型,整个房型区域比较规整,采光非常好,没有浪费的空间,业主希望在设计时满足风格要求,但又不显得传统。
客厅
业主家整体以高级灰基调的装修,配以色彩鲜明的对比色家具,亮色皮质精致家具做点缀,极力呈现高级灰的品质。整体用卡其色双人位与单位的蓝色皮质沙发点出空间色彩,运用与单人位沙发同色系的窗帘来整体突出空间的色彩感,铜质的茶几和边几,玻璃和大理石台面还有瓷质花瓶的穿插又形成了极富层次感的虚实搭配。简单而不凌乱的感觉会让自己身心非常舒适,可以暂时逃离现实的纷扰,让人有种古典优雅的感觉。
卧室
业主喜欢的古典美式,把主卧做成纯粹的美式。但不会像之前的家具那样,非常喧哗,高调。选择了一款简约但又不失美式的韵味来作为自己喜欢的感觉。配上米白色的窗帘让空间沉静下来,整个墙面的色调是以暖色为主。这样休息的时候让人显得安静,舒适。
餐厅
餐厅配已古典美式元素的餐桌椅,和客厅的色系一致呈现,整个效果不会出现沉闷或者喧宾夺主的情况。古典的餐桌加上白色的点缀餐椅让空间提亮了不少。在配上古铜色的吊灯,整个会感觉舒适,优雅。
