大华公园世家+120平+现代北欧
2019-11-22 10:06:04 查看人数 348
案例面积:120㎡
案例户型:三居室
装修造价:约10万
案例风格:现代
北欧风格家居设计,简洁、干练,让家中呈现一种自认的舒适、干净之美。白色墙面,餐桌椅就像那故意做旧处理的木质长桌,一股浓浓的北欧范,配着绿色的植物更显明朗与温馨。原木色的餐桌搭配,现代与自然元素相结合,温暖的色调一致搭配。让整个餐厅温暖起来。
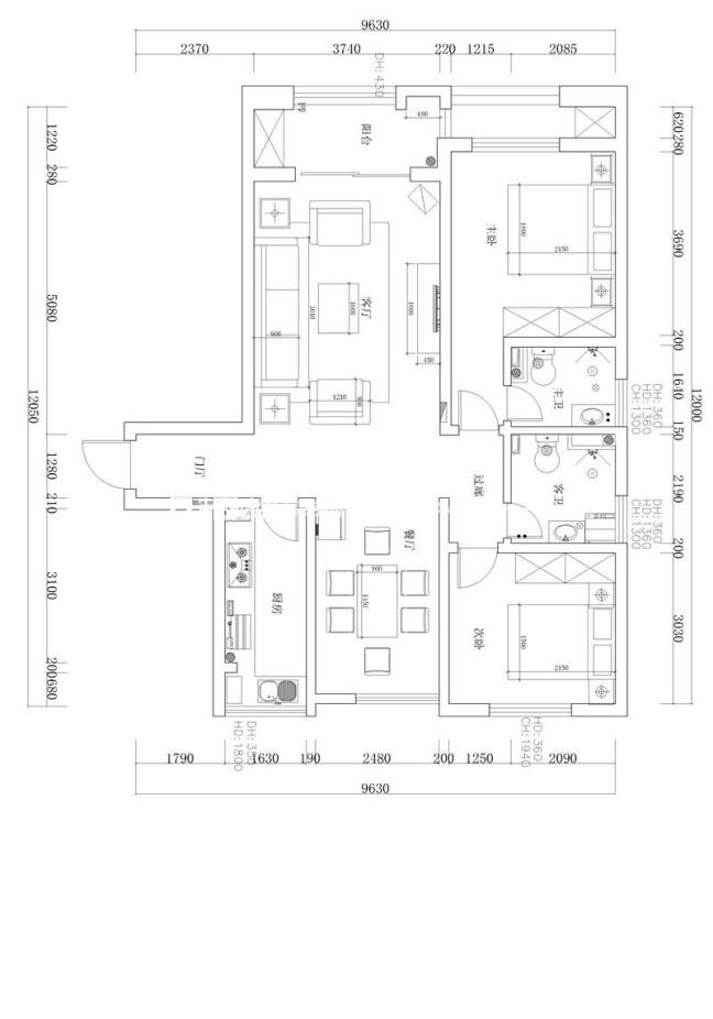
户型图
该原始户型为两室二厅一厨两卫的平层,可以说是南北通透,整个房型区域比较规整,采光非常好,没有浪费的空间,业主希望在设计时满足风格要求,但又不显得传统。
客厅
业主本来就喜欢简单安静的环境,作为居家的情况将自己的客厅在装修上面简单化的处理,并后期以软装的配饰和色彩的感觉来调解出自己想要的感觉。整体以木质和布艺结合,整体线条和颜色简单,但简约风格多功能可不简单。每一物件都强调相对与人的机理功能学和储物合理性,显示设计者细致入微的生活观察能力和纯熟的设计应用能力。
卧室
整个房子业主希望将设计成自然生态的的感觉,在讨论中将卧室背景墙面运用了大自然的壁画来体现回归自然。整个房间以大面积的原木色家具作为主色,选择草绿色作为辅助色,让其房间温馨而舒适,像有种自然的感觉。
