济南财富壹号135平轻美式风格案例
2018-07-25 10:51:37 查看人数 739
案例面积:135㎡
案例户型:三居室
装修造价:约23万
案例风格:美式
本案例位于济南槐荫区财富壹号,根据客户的需求和想法,设计师推荐了轻美式风格,它不像美式古典的复杂,也是不像欧式风格的华贵,而是让家人能够在清新,安静的家里享受温暖和惬意,去掉一天的疲倦。
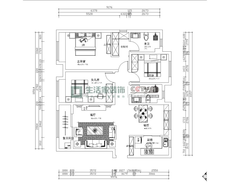
户型图
本案例的建筑结构上来讲,厨房相比较整个空间来说偏小一些,冰箱得需要合理的安排,并且配备一个单开的冰箱比较合适。其次是主卧衣帽间的位置,开发商给的位置不是非常的合理,需要做一些改动 优势:南北通透,采光很好。
客厅
电视墙两边做了一个对称的石膏板线+壁纸的设计。中间乳胶漆的表现形式,简单又大气。不同材质的表现形式使得电视墙的造型更加生动立体,也表现出了一个自然温馨的环境。 客厅吊顶采用了石膏板的形式,整体色彩饱和度高,在诸多方面搭配了鲜亮的颜色,细节上都注重空间使用功能性,螺旋状的灯具给空间增添了一抹有趣的气息,整个空间温馨大气。
餐厅
餐厅因为有空调管道所以在北边做了吊顶,顶面是两圈石膏线+石膏板。背景墙做了浅蓝色搭配挂画的形式,简单大气。西橱的打造充分利用了空间,还美观实用。
过道
入户打造一个衣帽柜,放日常衣物,增加了日常生活的便利性和储存空间,还充分利用了空间。走廊吊顶采用了石膏拉缝的设计,比较整体、美观。为了避免入户门直接对着卧室门,加了弧形的哑口。地面方式采用了地砖菱形铺贴加串边的设计,会显得走廊长远,也会有一个区域的划分。
