济南财政厅宿舍150平轻美式风格装修案例
2018-07-18 18:09:09 查看人数 776
案例面积:150㎡
案例户型:三居室
装修造价:约23万
案例风格:美式
本案例位于财政厅宿舍,是一个旧房改造的方案。在原始红砖墙的裸露构架上经过设计师的雕琢,一个温馨,大气,轻奢的家就出现了。电视背景墙搭配了一格灰青色的壁纸,清新淡雅,又不失韵味。搭配深色家具和软装的搭配,给人鸟语花香的意境,吸人眼球。
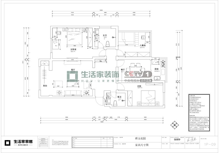
户型图
这里呈现的是改造之后的户型图,目前大家看到的儿童房的位置,原来是一个大的阳光房,但是由于业主的居住需求,不在保留。设计师根据建筑结构外形的特点,做了一个大的改动,让它成为了一个独立的空间。
客厅
本案例在客厅的设计上,以简洁明快,宽敞而富有历史气息。整体色调,深浅搭配得当,给人以舒适的感觉。吊顶与电视墙、沙发墙所不同的是没有中规中矩,而是采用了石膏板弧形顶,大气时尚的亮点
卧室
儿童房,颜色比较亮丽,蓝色给人一种活泼、愉悦的感觉。整体个性比较突出,更有创意的造型,搭配白色高低床,干净明亮符合儿童的风格。玩偶、玩具、色彩更能突出天真、活泼的主题。 主卧相对于客餐厅就没有那么复杂的造型,整体造型简单、舒适。储物的设计也很充分。休闲椅的设计,给这个空间又增添了一份生活气息。软装搭配的色系比较多,墙面浅黄色的设计,这样也使得空间很和谐、很大气。
餐厅
餐厅同客厅类似,简单的石膏线条造型、浅蓝色和白色乳胶漆交织、深色家具的搭配、石膏弧形顶。搭配与家具类似颜色的挂画,色调统一,简洁大方。
过道
走廊玄关墙面做弧形石膏造型线,与走廊门洞相呼应,搭配装饰画和储物柜,不会让空间显得很单调。餐厅外墙挂一些装饰画,休闲桌椅的设计,可以用于休闲娱乐的场所。为客厅增添了一份乐趣。
