济南建大花园132平方美式风格案例
2018-07-25 11:29:36 查看人数 724
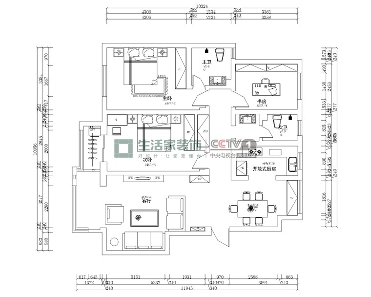
案例面积:132㎡
案例户型:三居室
装修造价:约19万
案例风格:美式
本案例是历下区建大花园,业主是一位非常知性的女性,穿衣上非常的讲究。所以对装修也是要求非常高的,一再确定之后,设计师推荐了美式风格的装修设计,整个空间的颜色还是以浅驼色为主,所以在一些电视背景墙,沙发背景墙上设计的更加精致。
户型图
本案例从建筑结构上看,吊顶的梁受到影响,不加以处理,影响整个空间的美观度。好在,南北通透,两个阳台,一个可以用来做生活阳台。一个为休闲阳台。
客厅
沙发墙简单的石膏板造型和壁纸的搭配,精致优雅,与电视墙相呼应。深色的家具搭配色彩亮丽的皮质与布艺,有年轻活力的一面,也有稳重大气的一面。因为沙发墙比较特殊的位置,所以设计了圆形顶与弧形相连。 客厅电视墙采用石膏压线+壁纸的手法,很彰显大气的质感,也很有层次感。吊顶采用弧形+灯带设计+石膏板的设计,避免了沙发墙的直角,U字型,两边对称,沙发墙的缺角里单独的半圆造型。在视觉上显得客厅空间大。地面采用了比较明亮的瓷砖,简单大气。
餐厅
餐厅复古的家具搭配深蓝色,给人神秘舒适的美,背景墙做了弧形的造型设计与吊顶的中规中矩形成对比。西橱的打造,不仅充分利用了有效空间还美观实用。无论是美式的自由,还是散发出来复古怀旧的时代感,都令人向往。
卫生间
主卫墙砖采用了浅色+腰线的形式,地砖颜色比较深,耐脏。打眼看去,整个空间就给人干净明亮的感觉,不论是墙地砖的搭配还是洁具的搭配都很干净实用。 次卫干区因为和客厅相连,所以瓷砖也采用了暖色调,能够使整体统一起来,蓝色的浴室柜也给人一种清新明亮的感觉。
过道
走廊不论是吊顶的设计还是地面的设计,都很整体给人一种悠长的感觉,色调也很统一。玄关采用弧形石膏板造型+壁纸的形式,与吊顶的弧形相呼应,地面用两条串边,这样走廊可以铺整块的瓷砖800*800,没有接口。壁纸与墙面和家具形成了很好的对比。色彩过渡合理,层次立体清晰,舒适大气。
