成都装修:168㎡北欧美宅,用色彩温暖幸福时光!
2018-01-14 14:22:05 来源:京东生活家 查看人数:1267
爱笑,运气一定不会太差;

(以上为成都装修公司生活家原创,请勿转载!!!)
爱美食,那一定很善于发现生活中细小的美好;
爱旅行,那一定向往自由、追求新鲜,风景看多了,心灵自然饱满了;
爱生活,那一定积极乐观,热情洋溢,对所有事物充满期待。
我想这样的一位设计师,一定温暖、细腻、时尚、懂生活!

平时忙碌的工作,设计师并没有太多闲暇时光,所以遇到长假,他都会去各地走。“身体和心灵总要有一个在路上“,不同的风景、不同的文化、不同的人,让他也发现了更多的精彩。那些未知的美好一旦被触及,也就成为心中永远的风景,成为创作的源泉。

设计师介绍
设计师:白露
作品名称:冬之夏
作品楼盘:信和御龙山
作品面积:168㎡
所获荣誉与证书:
国家注册室内设计师
高级室内设计师认证称号
成都家装行业百强设计师
中国建筑装饰协会荣誉会员
CIID中国建筑学会室内设计分会荣誉会员
易设学院陈设设计优秀学员
2016年成都市优秀设计师
获奖经历:


2017年荣获“第十八届建筑装饰空间艺术设计大赛西部之光奖银奖”
2016年荣获“第十七届建筑装饰空间艺术设计大赛西部之光奖银奖”
2015年荣获“第十六届建筑装饰空间艺术设计大赛西部之光奖铜奖”
2014年荣获“第十五届建筑装饰空间艺术设计大赛西部之光奖提名奖”
设计思路
业主是位时尚的年轻人,喜欢自由和放浪不羁。所以在设计之初我考虑到年轻人不断创新和审美。用北欧的灰色营造出有质感的冬天,但是在他其中穿插加入了夏日的火热,卧室不同的人居住运用色彩营造出秋天春天的温暖。运用四季色调的变换营造出不同的场景感,从而实现创新的美感。
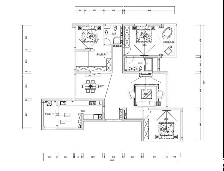
空间布局

餐厅晚上下班回到家中,妈妈准备的可口美味的晚餐就会上桌,吃着熟悉的妈妈菜,聊着上班的有趣故事或者家常,享受一天最幸福的时光。被爱包围,用心生活。


根据业主家庭成员的生活喜好,做了一些小小的改变。业主是28岁的时尚年轻人和母亲居住在一起,所以主要的居住空间我们考虑了两个卧室,把另外两个房间打通作为套房使用,业主有看书的习惯,平常看书累了也有一个可以休息的空间。主卧室我们把阳台空间融入了卧室空间,做成了单独泡澡的区域和休闲区。让成品浴缸和卧室整体风格融为一体,可以作为观赏装饰空间。客餐厅空间用地面的高低材质差别和吊顶的无主灯设计与叠级的差别,从而使客厅和餐厅空间有了明显的区分,但还是一个整体。

客厅运用整体的灰色系强调了业主的沉稳与内敛的性格,用黄色的跳跃性体现了他属于年轻人的火热,用冬天与夏天的的对比色来表达动区,沉稳中有跳跃。

餐厅晚上下班回到家中,妈妈准备的可口美味的晚餐就会上桌,吃着熟悉的妈妈菜,聊着上班的有趣故事或者家常,享受一天最幸福的时光。被爱包围,用心生活。

主卧疲劳了一天,就喜欢静静的躺在卧室看看电视,柔软的大床,似乎可以洗涤一天的疲劳。亦或是蜷坐在地台的椅子上,看看书。时光就这样被柔软了 。

次卧妈妈喜欢安静,所以运用了生机的绿色,床头吊灯的设计,妈妈可以安心的起夜,而不用担心照明的问题。柔软的大地毯,温暖的触感,不用担心踩到冰冷的地毯上。
生活中从来都不缺少温暖,只要设计师多一些对细节的把控,多一些对家人关怀的理解。让设计温暖生活,让细节柔软时光!这就是成都装修公司生活家设计师的设计宗旨!
(以上为成都装修公司生活家原创,请勿转载!!!)
元
元


