枫叶新都市+190㎡+欧式
2018-08-29 18:10:44 查看人数 2155
案例面积:190㎡
案例户型:三居室
装修造价:约32万
案例风格:欧式
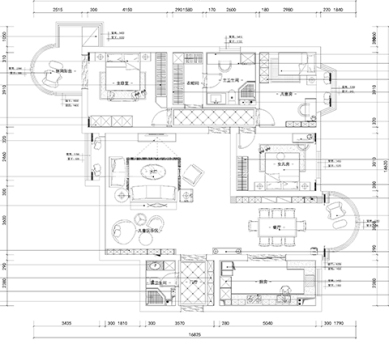
本户型为190㎡三室两厅两卫,东西走向。室内布局良好,动静线影响不大,对私密性的影响几乎没有。 女主人青春,靓丽,整天满世界遨游,接触欧式文化多,我把大片的蓝色调剂之后融入到欧式风格中。搭配深色调的欧式新古典家具,这样带一点新古典的小奢华,高贵典雅。
户型图
原始户型图
客厅
客厅这儿,利用吊顶,划分成了2个区块,沙发前边是待客区,沙发后边是儿童游乐区。书柜下边放儿童的玩具,书柜上边放老人爱看的书籍。客厅不再是单一功能,充分利用空间,满足三代人的需求。
卧室
主卧的颜色与外边的客厅又不一样,主卧是老人居住,选用咖色的暖色调,,欧式的家具,柔和的墙纸,拼花的壁纸,都统一在这个色调之下。可以让老人居住在暖暖的氛围中。
餐厅
统一的色调,华丽的装饰,处处透露着不凡,定制壁柜与墙体设计,使得餐厅毫不单一。地砖与吊顶的个性化设计,撑起了整个区域的气场,再加上高档的餐桌椅,餐厅就显得非常高档。
次卧
儿童房完全就是另一个世界了,这面墙上是一幅卡哇伊的世界地图壁画,融趣味性与知识性于一体, 这是一个小男孩的卧室,蓝色,辅助以黄色,点缀绿色,活泼自由的色彩勾勒小孩子丰富多彩的世界。这架子床也是卡通的,而且爬梯的台阶下都是可以储物的抽屉,方便收纳玩具。
卫生间
这个卫生间原来是主卫,包括这个衣帽间原来也在主卧,原来主卧的门拆了退后2米,主卫和衣帽间变成公共的。卫生间的功能齐全,洗衣机,化妆间都放在这儿。全家人更衣,洗衣服,女主人早上化妆,客人多了临时如厕,这儿改造成了一个具有综合功能的卫生间。
