【实景】 中庚当代艺术193m² | 现代风格的灰色空间
2019-12-18 17:03:57 查看人数 2569
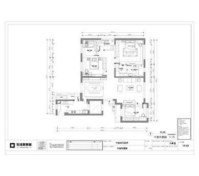
案例面积:193㎡
案例户型:三居室
装修造价:约34万
案例风格:现代
该案例是三室一厅两位的户型,其中背景墙位置不明确,需要新建墙体作为电视背景墙,并且入门没有玄关。1,首先明确空间分布,按客户生活需求做成三室两厅两位的户型。 2,在入户门的位置把一个大空间一分为二成一个卧室和一个单独的玄关,并做储物柜增大收纳空间。
户型图
原始户型图
客厅
客厅的设计遵循的去繁就简的原则进行处理的,沙发背景墙面没有繁杂的造型,以原有的墙面为基础,进行一定的三角形的分割,然后给予两种不同的材质,简单明了。电视背景墙面采用黑色横平竖直的切割线条,并搭配黑色灯槽贯穿客餐厅始终,被黑色背景墙拦截戛然而止。金属线性长条灯垂直落下,一纵一横,拉伸视觉之时亦是丰富空间视觉感受。
卧室
主卧的空间比较大,功能需求也比较齐全。并且延续了客餐厅简约的感觉,在材质的选择上主卧更偏向柔和。空间吊顶悬浮造型采用3公分离缝处理,吊顶边缘线平行于四周墙体,利落与干脆的视觉感受油然而生。
餐厅
餐厅的设计继续延续了客厅的设计简约原则,大面积墙面选择白色,使得客餐厅整体风格色调一致。木质的餐边柜选择与客厅背景墙颇为相似的颜色,使得整个空间一深一浅呈现黑白格调,即使大面积的柜子也不会显得突兀拥挤,岩板和灯光的使用使这面柜子为餐厅增色不少。
次卧
次卧空间的整体风格与其他空间相近,保证了整体空间的整洁性。嵌入式的衣柜使空间看起来更整洁。整体灰色的色调,低调,硬朗,又大气。没有过多复杂的元素,简单中透露着生活的质朴。一切从简,还原生活最初的品质。
卫生间
卫生间的整体空间采用了灰色系的瓷砖,原木的家居去除了整体空间的冷清。淋浴区和洗浴区的双重搭配,满足了生活中的一切需要。圆形的浴室镜,在头上的射灯的照耀下,显得格外奢华。整体舒适的景象使洗漱更有韵味。
