金地十一峯 151㎡ 意式轻奢
2026-01-09 10:56:36 查看人数 5986
案例面积:151㎡
案例户型:四居室
装修造价:约15万
案例风格:轻奢
四周温润的木饰面板墙面,用天然的质感与温暖的色泽,与灰色地砖形成了鲜明而又和谐的对比。一冷一暖之间,巧妙地平衡了空间的视觉感受,营造出清爽宜人却又不失温馨的独特氛围。
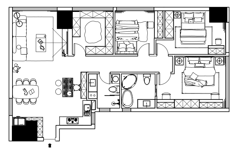
户型图
户型分析 1.采光通风较好,动线流畅,拥有独立的洗衣阳台和景观阳台; 2.整体无改动,仅增加储物空间和软装布置。
玄关
当家门缓缓开启,开放式设计的独特魅力即刻展现。视线毫无阻碍地径直穿透,一眼便直达客厅一侧的景观阳台,阳光与清风毫无拘束地穿梭其中。
胡桃木色的到顶玄关储物柜瞬间吸引目光,其深沉而醇厚的色泽,用自然木材的独特质感,为空间增添了一份沉稳大气。
中间精心设计的深灰色置物区,不仅在色彩上与整体环境相协调,更提供了实用的收纳功能,方便放置钥匙、包包等日常小物。
往内延伸,储物柜的转角处别出心裁地采用了镂空的展示区设计。宛如为空间打开了一扇灵动的窗口,打破了整面储物柜可能带来的厚重与沉闷感。
随心摆放精致的装饰品,或是插上几束娇艳的花束、几株清新的绿植,为空间注入生机与活力,同时也在视觉上起到了延伸空间的作用。
客厅
客厅通铺的灰色调大地砖率先映入眼帘,为整个空间奠定了沉稳而内敛的基调。那细腻入微的纹理,仿佛是岁月留下的独特印记,散发着温润且迷人的光泽。
顶部柔和的暖白色调如同一层轻柔的薄纱,而四周温润的木饰面板墙面,用天然的质感与温暖的色泽,与灰色地砖形成了鲜明而又和谐的对比。
一冷一暖之间,巧妙地平衡了空间的视觉感受,营造出清爽宜人却又不失温馨的独特氛围。
过道垭口同样选用了温润的木饰面板,与四周墙面相呼应,形成了一种连贯而统一的整体感。
从阳台延伸而出的电视背景墙,更是设计中的一大亮点。墙面正中间采用局部凸出的设计,搭配精致的灯带,瞬间让电视背景墙拥有了立体而丰富的层次感。
下方深灰色调的地台储物柜,不仅增加了局部的储物空间,方便收纳日常物品,还与整体色调相协调,进一步强化了空间的统一性。
采用无主灯设计巧妙构思不仅拉高了层高,让视觉毫无阻碍地延伸,更赋予了空间一种开阔与通透的感觉。光线在空间中自由穿梭,根据不同的场景需求营造出恰到好处的氛围。
客厅的软装搭配:黑色皮质直排沙发上,灰绿色和深灰色的抱枕错落有致地摆放着,为沉稳的沙发增添了一抹活泼与生机。
与之相呼应的灰绿色懒人沙发,黑灰色系的方形茶几,以及大面积灰色系短绒地毯,共同构建起一个色调统一而又和谐的空间。
厨房
半开放式厨房将灰色系的明亮通透感完美演绎,L形橱柜贴合墙面。
靠采光窗设洗菜池,阳光倾洒,洗菜便捷又惬意。
功能分区科学,电器、储物、洗菜、备菜、烹饪区一应俱全,动线流畅,烹饪高效有序。
吊轨推拉门设计巧妙,规避卫生死角,超白玻璃材质通透澄澈,即便封闭,光线也能自由穿透,让厨房时刻敞亮。
餐厅
就餐区背后,一整面浅灰色的木饰面优雅延伸至沙发背后,宛如一条柔和的纽带,将两个功能区域自然相连。
在就餐区与客厅的背景墙之间,巧妙地运用了条纹质感的墙板进行区分,增加了层次感。
视线转向玄关转角处,一整面的餐边柜延伸而出,与整体风格完美融合。
餐桌的选择是客餐厅的一大亮点,客厅茶几同款石材台面的六人位餐桌,搭配上奶茶色系的餐椅,柔和的色调为空间增添了一份温馨与惬意。
餐桌上,黑色系花瓶中点缀着绿色系鲜花摆件,宛如点睛之笔,为整个空间注入了生机与活力,精致优雅的气息扑面而来。
胡桃木材质的柜体,纹理细腻,质感温润,内嵌黑灰色冰箱,不仅在视觉上实现了无死角的美观,更让厨房电器与收纳空间巧妙结合,使整个客餐厅区域更加整洁有序。
无论是家庭聚餐还是朋友小聚,这样的就餐环境都能让人倍感愉悦。
卧室
推开主卧的门,首先映入眼帘的是精心打造的化妆区。
由化妆区向休息区延伸出一整排的储物区,深灰色主色调的储物柜沉稳大气,两侧巧妙穿插胡桃木的台面兼抽屉柜,既构建出实用的化妆桌,又划分出办公区域,功能与美学完美融合。
地面上,圆形地毯柔软舒适,搭配造型圆润的短绒单人椅,温柔俏皮的气息扑面而来,为空间增添了一份灵动与温馨。
主卧的墙面与地面设计,更是将木质元素的温润感发挥到极致。浅灰色的木饰墙板与木地板相互呼应,营造出和谐统一的视觉效果。
背景墙采用上浅灰色墙板下浅色木饰面板拼接的方式,巧妙打造出层次感,搭配棕色弧形皮质大床和棕色系皮质床头柜。
柔软的质感与优雅的线条,让意式轻奢风融入每一个细节。
卫生间
主卫的设计同样别具匠心,将淋浴区、盥洗区和浴缸区巧妙融合在一起,满足不同的使用需求。
在这里可以尽情享受淋浴的畅快淋漓,也可以悠然地泡在浴缸中,放松身心,舒缓一天的疲惫。
舒适感在每一个角落都得到了极致的体现,让每一次的洗漱都成为一场愉悦的体验。
公共卫生间干湿分离的公共卫生间,用灰色哑光墙地砖实现整体干净柔和,墙排、壁龛、干湿分离减少卫生死角,使用更方便。
次卧
灰色调的小次卧,一股沉稳的气息扑面而来,上浅灰下深灰色拼接的背景墙,巧妙地搭配了灯带,在视觉上营造出深邃而宁静的氛围。
靠落地窗的位置打造了(收纳 + 书桌)结合的柜体,使收纳功能得到最大化发挥,保持了卧室的整洁与有序,也为提供了一个安静的学习与工作角落。
阳光透过落地窗洒在书桌上,光影交错间,让阅读与思考都变得更加惬意。
合理的空间布局,使得小次卧虽面积不大,却功能齐全,尽显实用与精致。
儿童房
女孩房以灰粉色的主色调营造出甜美而浪漫的氛围,弧形背板巧妙地构建出墙面的转角,柔和的线条轻盈而优雅,为空间增添了一份灵动与俏皮。
下方放置的粉色系大床和床品,柔软而舒适,仿佛是云朵般轻盈,让人仿佛置身于梦幻之中。
进门一侧,定制的地柜和吊柜整齐排列,提供了充足的收纳空间,让女孩的衣物、玩具等物品都能有序存放。
地面上,毛茸茸的圆形地毯柔软而温暖,踩上去仿佛踏入了云端,搭配上粉色单人椅,营造出一个舒适而惬意的小角落。
衣帽间
单独的衣帽间收纳一家人一年四季的衣物,依墙面设计“顶天立地”的大衣柜内含挂衣区、叠放区、内衣区、鞋袜区、被褥区及更衣区等专属储藏使用空间,整体设计更为灵活。
其他
厨房外侧空间被精心打造成品茶区,一张与客厅茶几和餐桌同款石材的茶桌映入眼帘,茶桌采用黑白撞色设计,搭配的黑色烤漆单人椅和皮凳,线条流畅增添了一份精致与稳重。
而坐垫部分则是暖白色印着黑色的花纹,在冷峻的黑白基调中注入了一抹温暖与柔和,精致感瞬间拉满。
视线转向一旁的餐边柜区域,深灰色的餐边柜直达顶部,充分利用了垂直空间,展现出强大的收纳功能。
下方地柜则巧妙地结合了储物和西厨区的设计,满足了多样化的生活需求。台面背后的石材背板,不仅易于清洁,还为整个区域增添了一份质感。
搭配可移动插座,方便平时进行简单的西厨操作,如制作咖啡、烘焙点心等,让生活更加便捷。
地面铺设的定制黑白配色短绒地毯,如同为空间铺上了一层柔软的云朵。细腻的触感,不仅提升了行走的舒适度,更在黑白之间营造出一种和谐的视觉效果,与整体风格相呼应。
