在线咨询
免费设计
免费量房
免费验房
京东生活家 / 装修案例 / 济南保利华庭89平北欧风格装修设计案例 济南生活家装饰

济南保利华庭89平北欧风格装修设计案例 济南生活家装饰

2015-04-28 10:39:07 查看人数 2130

案例面积:89

案例户型:三居室

装修造价:约15

案例风格:现代

济南保利华庭89平北欧风格装修设计案例 济南生活家装饰

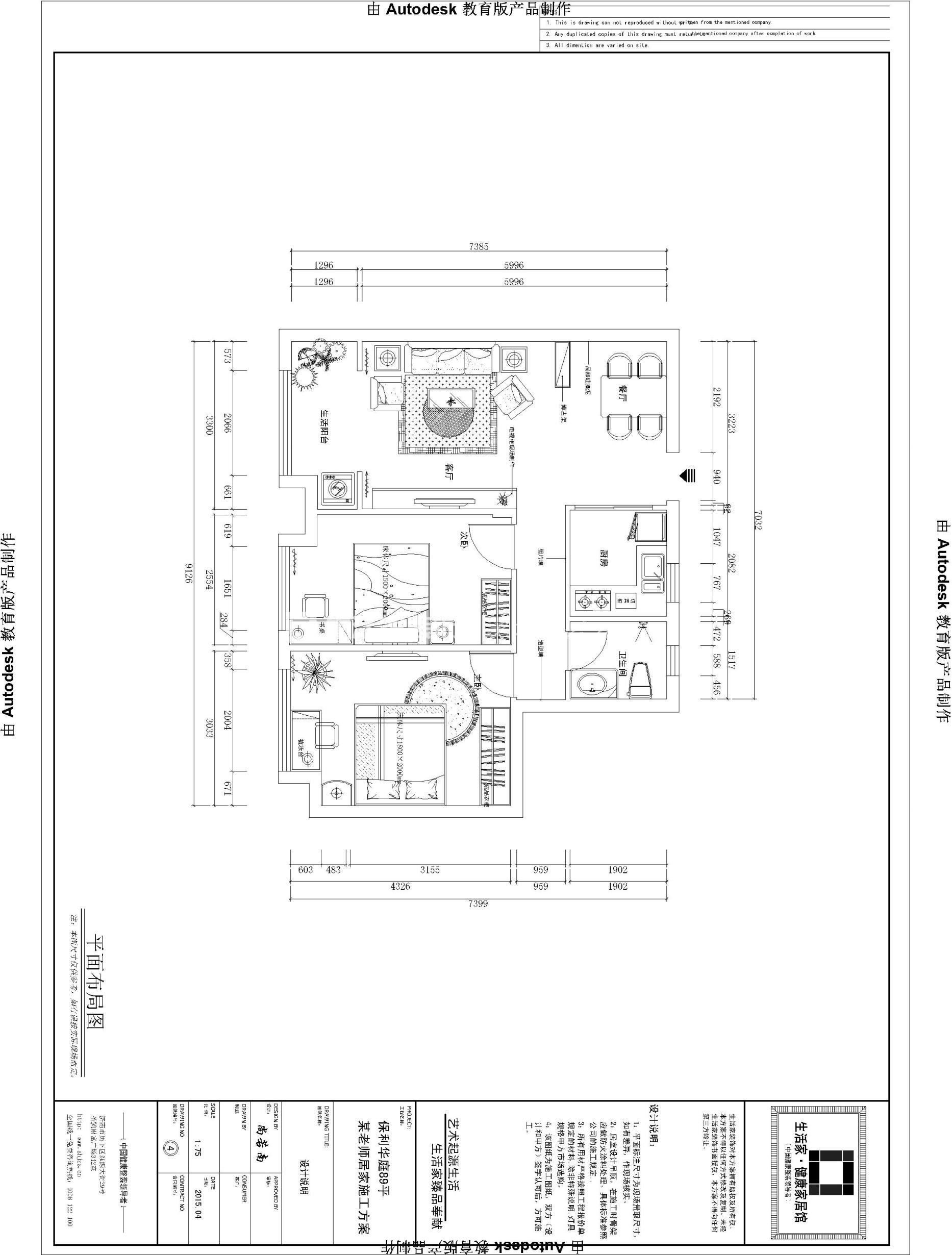
户型图

户型图保利华庭装修,89平装修,济南时尚装修,济南北欧风格装修

济南保利华庭89平北欧风格装修设计案例 济南生活家装饰

客厅

电视墙保利华庭装修,89平装修,济南时尚装修,济南北欧风格装修

榻榻米保利华庭装修,89平装修,济南时尚装修,济南北欧风格装修

飘窗保利华庭装修,89平装修,济南时尚装修,济南北欧风格装修

济南保利华庭89平北欧风格装修设计案例 济南生活家装饰

精品案例推荐

查看更多
光明璟宸 96㎡ 复古风

光明璟宸 96㎡ 复古风

锦粼天曜 190㎡ 意式轻奢

锦粼天曜 190㎡ 意式轻奢

滇池澜庭 140㎡ 意式风

滇池澜庭 140㎡ 意式风

绿地东海岸 136㎡ 美式混搭风

绿地东海岸 136㎡ 美式混搭风

Hi~ 我是小葵 装修报价可以找我哟~