在线咨询
免费设计
免费量房
免费验房
京东生活家 / 装修案例 / 鑫苑名家 现代简约 悦享家

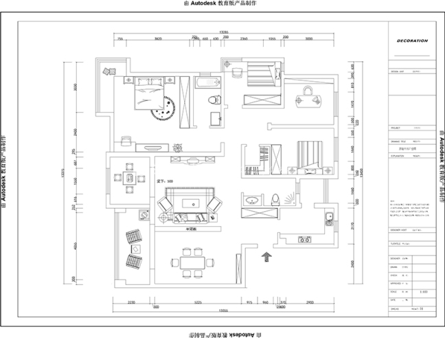
鑫苑名家 现代简约 悦享家

2015-03-29 15:14:57 查看人数 1868

案例面积:170

案例户型:三居室

装修造价:约28

案例风格:现代

现代简约风格

精品案例推荐

查看更多
光明璟宸 96㎡ 复古风

光明璟宸 96㎡ 复古风

锦粼天曜 190㎡ 意式轻奢

锦粼天曜 190㎡ 意式轻奢

滇池澜庭 140㎡ 意式风

滇池澜庭 140㎡ 意式风

绿地东海岸 136㎡ 美式混搭风

绿地东海岸 136㎡ 美式混搭风

Hi~ 我是小葵 装修报价可以找我哟~