绿城百合 162平 轻奢设计方案
2021-03-26 14:29:03 查看人数 888
案例面积:162㎡
案例户型:四居室
装修造价:约26万
案例风格:轻奢
客户需要一位细心耐心有经验的设计师贯穿整个设计以及施工过程,我作为设计经验丰富的女设计师从设计理念到服务细心程度完全达到客户满意。
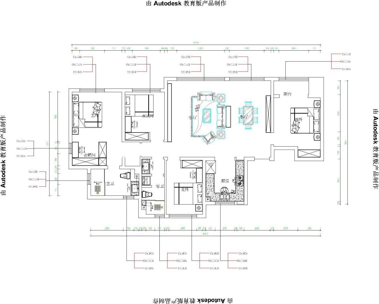
户型图
本案通过色彩的深浅强调了空间的层次,轻奢风格的突出特点也是无主灯设计,打造客餐厅不同的光源效果,营造整体的家居氛围,采用深色地砖更是让空间增加了视觉美感。全房智能家居的应用更是为居家生活提供的高品质的生活方式。
客厅
轻奢风格对于色彩要求很高,深色层次需要着重设计搭配,通过亮色纯色将空间提升品质,无主灯的设计以及地面大板瓷砖的使用,更是带来空间极致的视觉效果。
卧室
轻奢风格设计空间比较灵活,而且实用性非常强,所以很多用户在装修上都会选择这种风格。这种装修风格可以让居室显得更大气,而且可以设置更多的功能性组合。
餐厅
餐厅与客厅同一空间,协调一致,餐厅注重收纳,餐边柜的设计与背景墙融为一体,既增加了储物功能又不失美观。
次卧
次卧儿童房,设计上考虑衣柜书柜书桌一体设计,节约空间并能充分利用空间。
