东方蓝海75㎡现代简约
2020-09-19 13:29:01 查看人数 5903
案例面积:75㎡
案例户型:二居室
装修造价:约12万
案例风格:现代
客户一家都是影视行业的,思想上比较开阔,夫妻两居住,儿子偶尔过来。风格上温馨舒适,满足居住需要,又考虑到所有的生活小细节。简约不等于简单,细节材质决定整个风格走向。
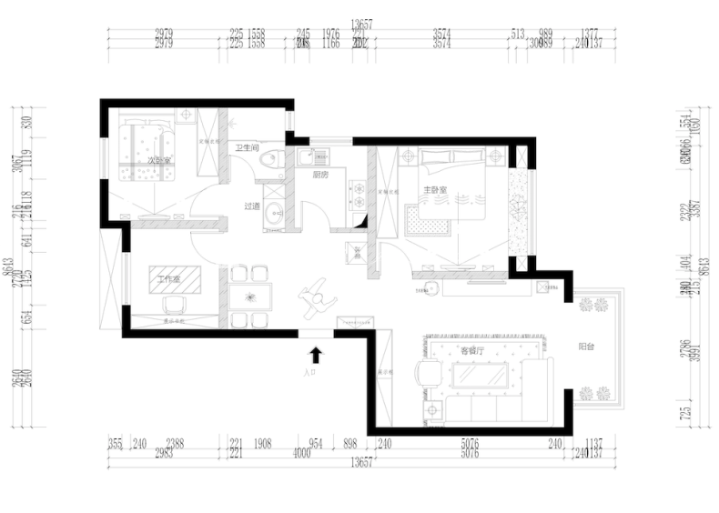
户型图
两室两厅一厨一卫,建筑面积75㎡,各空间设计合理,充分利用空间,风格上温馨舒适,满足居住需要,又考虑到所有的生活小细节。
客厅
客厅采用黑白灰木色的基本色调。浅灰色的布艺沙发,作为中间调和颜色,点缀绿色,让整个空间温馨舒适又生机勃勃。
卧室
主卧夫妻俩喜欢跳跃一点的颜色,整个的颜色配比非常鲜亮舒适;次卧作为儿子住,小清新的感觉,有一些轻奢格调,居住舒适。
厨房
厨房做成了开放式厨房,柜体门板台面颜色选用咖色和灰色,与客厅色调相互配合。做西餐时也能照顾到客厅的家人,享受天伦之乐。
