住总万科橙85㎡现代简约
2020-08-28 11:26:36 查看人数 2027
案例面积:85㎡
案例户型:三居室
装修造价:约15万
案例风格:现代
本案的设计基调为现代简约,既有元素效果又不繁琐。设计师运用现代的设计手法中点缀木线造型,重点考虑房间的人文设计和情感交流,突出家庭温馨氛围。空间的基调为暖色,同时辅以不同的材质如:壁纸、乳胶漆、布艺和灵活的光线运用,让整体空间呈现出暖暖的家庭氛围。
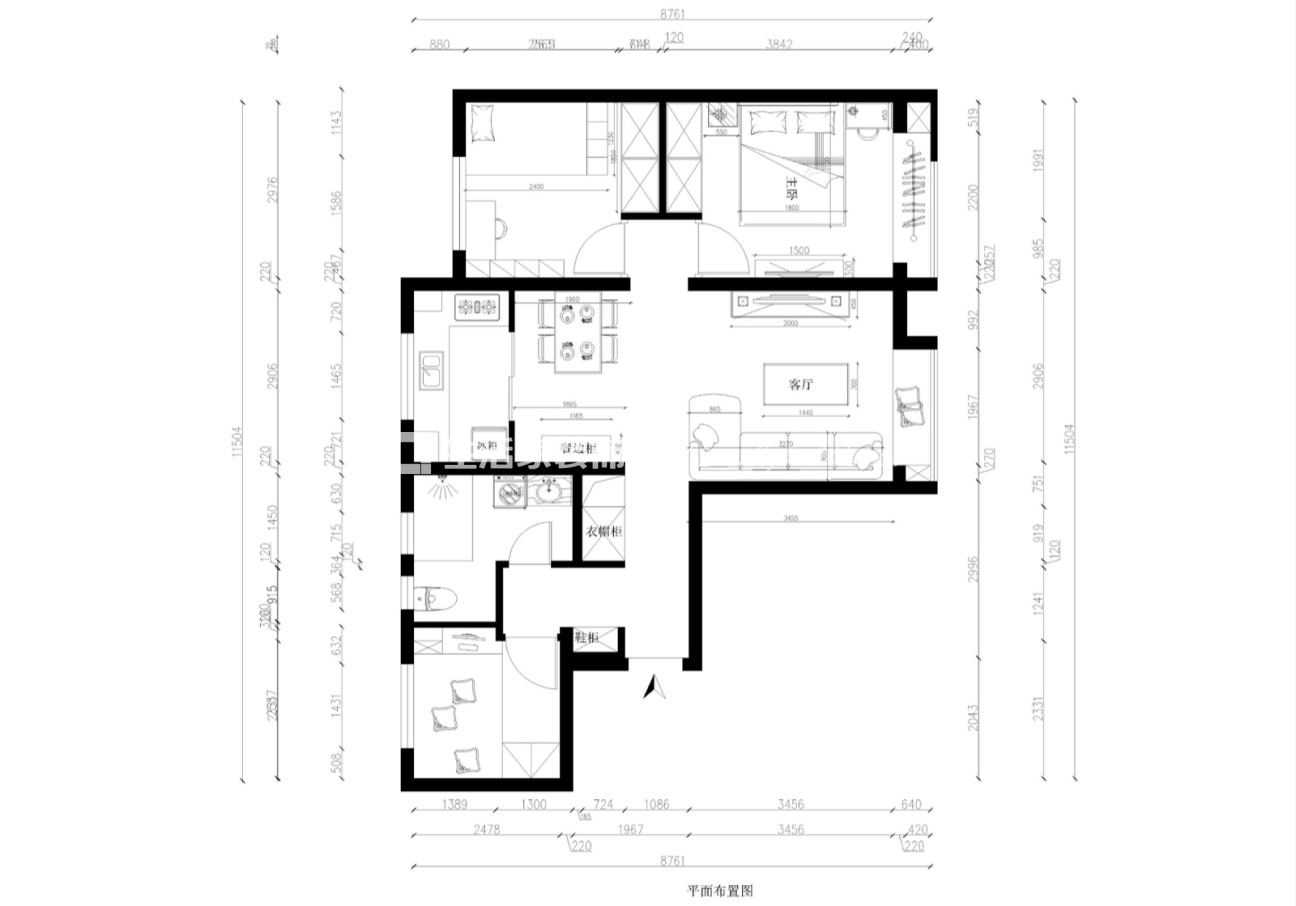
户型图
本案的设计基调为现代简约,空间的基调为暖色,同时辅以不同的材质如:壁纸、乳胶漆、布艺和灵活的光线运用,让整体空间呈现出暖暖的家庭氛围。
客厅
客厅暖色系为主,通过软装搭配体现简约欧式新古典元素,简单搭配银色家具点缀,风格简单大气
餐厅
电视背景墙简单线条区分,欧式暗花壁纸点缀,简单突出重点。
玄关
门厅进门过道右面照片展示,突出家庭温馨氛围,左面黑板漆,增加家庭沟通空间,体现人文设计。
