富力城92㎡现代
2020-08-26 10:43:11 查看人数 5202
案例面积:92㎡
案例户型:二居室
装修造价:约15万
案例风格:现代
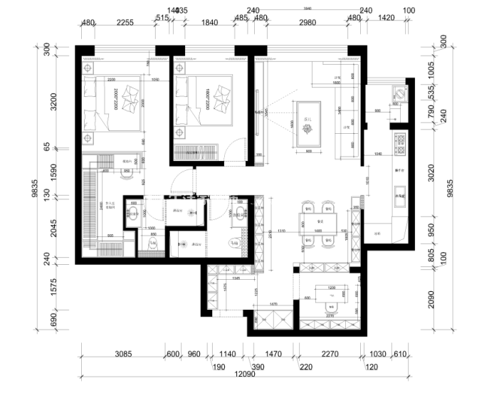
两室两厅两卫 建筑面积大约:92㎡ 户型各房间设计规范合理。该户型保留原有户型的基础上,改动卫生间和主卧格局,使用空间最大化合理使用,位置合理,空间层次分明。空间整体背景黑白灰,颜色以客厅沙发为中心向四周散开,装饰画、饰品等颜色都与沙发上颜色呼应。方圆结合的家具形态,营造时尚与独特品味,迎合客户需求。
户型图
两室两厅两卫 建筑面积大约:92㎡ 户型各房间设计规范合理。该户型保留原有户型的基础上,改动卫生间和主卧格局,使用空间最大化合理使用,位置合理,空间层次分明。
客厅
客餐厅空间整体背景黑白灰,颜色以客厅沙发为中心向四周散开,装饰画、饰品等颜色都与沙发上颜色呼应。方圆结合的家具形态,营造时尚与独特品味,迎合客户需求。
卧室
卧室空间让人放松的木地板,低调又质感,敞开式空间,点与线,线与面,虚与实,让空间通透且干净
厨房
厨房空间呼应客餐厅色调,厨具的选择上也是精心挑选,亲手制作一杯咖啡,淋上一颗纯白泡泡的奶油爱心,在休闲惬意的下午。
卫生间
卫生间空间要求简洁明亮,整体背景黑白灰。营造时尚与独特品味,迎合客户需求。
