济南万达文旅城154平新中式风格设计案例
2020-04-05 15:16:11 查看人数 697
案例面积:154㎡
案例户型:四居室
装修造价:约23万
案例风格:新中式
此案例是新中式风格,衍脉自深厚邈远的传统文化,从家具的形制、流线、色泽,到墨枝斜逸、山掩人家的挂画,均镌刻着东方诗性的肌理,在中式元素的基础上增加了时尚现代的设计在里面。
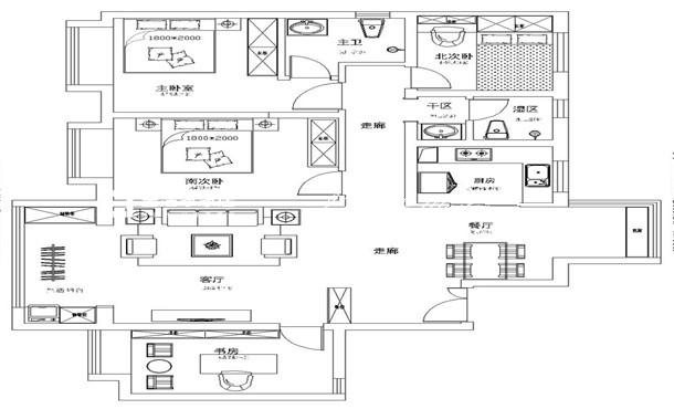
户型图
此户型改动的地方不是很多,主要根据业主的需求情况,去合理的设计每个空间的布局规划,利用率达到最大化,增加居家生活的实用性。
客厅
客厅设计:原木与大理石背景墙勾勒出素雅的基底。几束花材,橙色的休闲椅,与墙上的大理石水墨相得映彰,赋予空间以感性与浪漫的生命力。电视柜上方的摆件道出了空间中潜藏的静谧。
餐厅
餐厅:延续了中式风格中端雅稳重的设色意图,山水画感的灯饰组合、古朴雅致的餐具、光洁红釉花器、清透山峦摆件,空间附着一层氤氲意境,中式意蕴的艺术特质一展无遗。
