影坛花园150㎡新中式
2020-01-09 11:14:45 查看人数 3143
案例面积:150㎡
案例户型:四居室
装修造价:约16万
案例风格:新中式
本户型的各个空间划分比较明确,所以没有对其进行太多的改造。在设计上,房屋空间既要有使用价值,满足相应的功能要求,储物空间多些,同时也要将环境气氛等因素作为目标,立志营造功能合理、舒适优美、满足人们的物质文化要求和精神生活需要的室内环境。
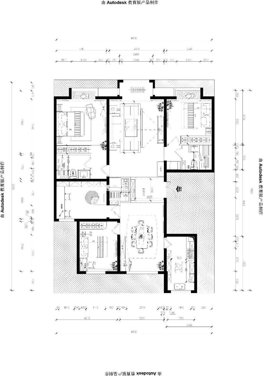
户型图
此户型是四室二厅二卫,室内使用面积121㎡,由于本户型的各个空间划分比较明确,所以没有对其进行太多的改造。在设计上,房屋空间既要有使用价值,满足相应的功能要求,储物空间多些。
客厅
客厅,中式元素与现代材质的巧妙结合,删繁去奢,东方之美跃然纸上,每一寸空间都极为讲究。沉稳而低调的中式家具,呈现出端庄优雅的大气之美。
餐厅
客厅看向餐厅,整个空间并不是复古元素的简单堆砌,而是将家具融合进了中式意境里。方圆之间,可见因景互借的韵味。
