华城万象130平北欧
2019-12-10 10:24:03 查看人数 890
案例面积:130㎡
案例户型:二居室
装修造价:约17万
案例风格:北欧
根据客户实际居住情况,将两间原本空间面积都较小的卫生间整合设计为一个大的有干湿分区的卫生间,提高了居住的舒适度。设计功能房,定制通顶柜及榻榻米满足了收纳及客人住的需求。客餐厅设计采用实木挂板及深色墙面,自然稳重又沉着大气有层次感。
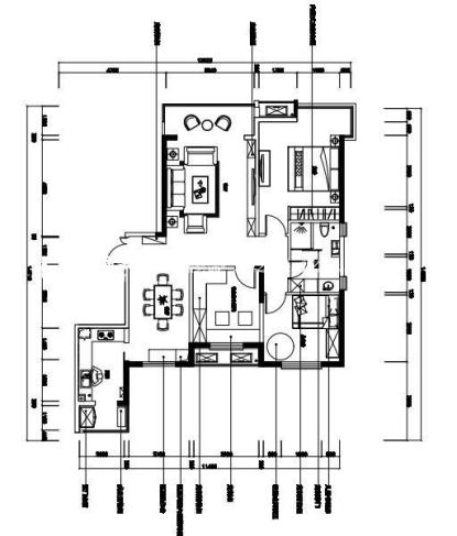
户型图
三房一厅两卫 建筑面积大约:130㎡ 户型各房间设计规范合理,储物要求较高,如储物柜设计,定制书桌设计,榻榻米设计等。客餐厅大开间,有利于客厅内部的布置。客厅带有阳台,自然光采光充足。主卧开间3.2米,是较为宽大的卧室开间尺寸,门和窗的位置也合理。书房的开间2.8米设计为多功能房。
客厅
整个客厅,以射灯,磁吸灯,台灯,落地灯组合成灯光系统,在装饰及功能上各有侧重,恰到好处地强调了客厅不同层次的景观。沙发采用了舒适度校较高的转角沙发,因业主的生活需求,未安常规设计电视机的位置,电视墙配以整面的定制柜来满足储物功能,茶几配以现代感较强黑板岩及胡桃木家具,整体富有干练气质。餐厅设计采用实木挂板及深色墙面,自然稳重又沉着大气有层次感。
卧室
主卧的储物功能满足生活的基本需要。墙体材质采用床头定制几何图形元素的壁纸,其他墙面用了奶茶色的乳胶漆,配以花型吊灯,让整个空间端庄的同时也温馨温暖。整体的颜色统一为暖色调,窗帘采用了黄灰拼色的布帘及干净的白色纱帘。
