香榭丽 135平米简欧风格
2019-05-31 10:19:38 查看人数 2015
案例面积:135㎡
案例户型:三居室
装修造价:约28万
案例风格:简欧
本案以现代结合轻奢风格为主基调,融合了北欧的家居饰品,整个作品浓淡相宜,更加丰富,大而不空,厚而不重,繁复中又有简约的质朴,有格调有不显压抑。
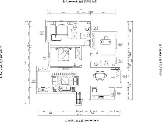
户型图
此户型为三居室,两间卧室一间书房,客餐厅分开规划合理,收纳空间利用得当,采光通风都比较不错
客厅
一灰色为主色调,浅色布艺沙发和木质电视柜圆形茶几,突出了层次感,颜色清新,让人眼前一亮
卧室
主卧的床头背景墙是整体房间的亮点,呈现出一个文艺精致的氛围,不用奢华的表达,让家更温暖舒适
餐厅
简约线条原木餐桌,餐厅位置做了一个吧台,增加功能区的同时可分隔空间。
书房
长时间保持一个姿势看书,会对颈椎造成影响,选择符合人体工程学的舒适座椅,加一组沙发,将休闲的功能并入书房
