大溪地别墅270平米欧式
2019-05-26 09:29:08 查看人数 2258
案例面积:270㎡
案例户型:别墅室
装修造价:约80万
案例风格:欧式
业主是六口之家,要求舒适温馨有格调的装修风格。风格特点:删繁去奢,绘事后素 因景互借 。
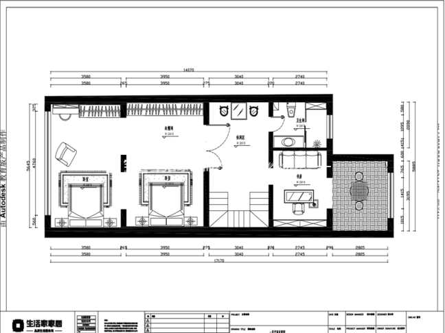
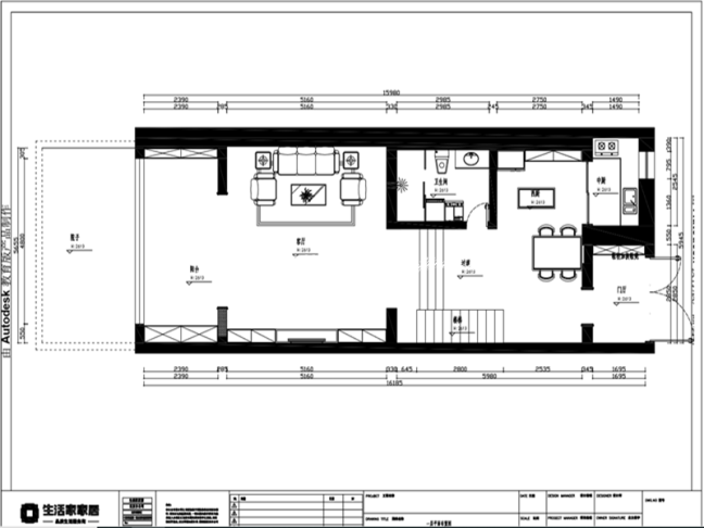
户型图
别墅整体呈现三层,一层主要以客餐厅 厨房卫生间布局,更体现舒适方便,二层分为两个卧室以及休闲书房区域,三层主要也是已居住休闲舒适为主,楼上已居住休闲舒适放松为主,一楼以会客 吃饭为主
客厅
客厅是欧式与古典风格的碰撞
卧室
卧室是我们休息的个人空间,设计方面需要强调舒适性及隐私性。整体风格延续简单舒适的风格,但在设计上更偏向于现代化设计,跟客厅餐厅的分格相呼应却又有不同的碰撞。床头背景墙的简单处理,实木直线条的顶面处理以及色彩适宜的壁画都让卧室的氛围轻松舒适。布艺方面,我们选择遮光效果较好的窗帘能有效的保护卧室的隐私性。
餐厅
餐厅是进餐交流的地方,对于一个家庭的意义更是毋庸置疑。餐厅的设计我们延续客厅的整体风格,却又在细节处删繁就简 使整体风格轻松舒适,并采用中西厨相结合的方式,使整个餐厅更加具有生活气息。实木线条打造整个空间的质感,线条走线简单,整体布局简单明了。
