济南海珀天沅小区137平现代中式案例解析
2018-08-14 16:13:07 查看人数 883
案例面积:137㎡
案例户型:三居室
装修造价:约17万
案例风格:中式
本案位于济南海珀天沅小区137平三室两厅两卫户型案例,定位现代中式风格,户型结构利用率也较高,在整体空间上进行了更加合理化的运用,使得空间更加的开阔,现代中式风格的设计手法更容易被大家所接受和运用
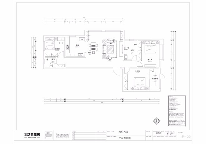
户型图
本案位于济南海珀天沅小区137平三室两厅两卫户型案例,定位现代中式风格,户型由于原始结构问题,改造空间不是很大,只是在原有结构的基础上进行空间的合理化运用,户型的每个空间均有独立的采光,公共走廊较长,可在墙面进行装饰弱化过长的问题。
客厅
本案位于济南海珀天沅小区137平三室两厅两卫户型案例,定位现代中式风格,本案户型客餐厅为一体式的设计方式,客厅的家具采用现代风格的原木色家具更为的现代舒适,不会有过多的压抑感,墙面装饰也均已简单的白色墙面配以简单的配饰,更加的凸显轻装修重装饰的设计理念。
卧室
本案位于济南海珀天沅小区137平三室两厅两卫户型案例,定位现代中式风格,卧室风格与整体的客餐厅风格相互统一,原木色的地板配以现代偏中式风格的家具更加的大方、舒适,卧室的布局以温馨为主,营造出舒适的氛围。
餐厅
本案位于济南海珀天沅小区137平三室两厅两卫户型案例,定位现代中式风格,本案客餐厅为一体式的设计方式,能够让整体空间拥有较大的空间,加深业主与家人之前的情感交流,一体式的设计让整体空间更加的开阔,再配以现代中式风格感觉的餐桌,整体空间更加的融合。
