济南海珀天沅小区169平新中式风格案例
2018-08-14 15:18:39 查看人数 695
案例面积:169㎡
案例户型:四居室
装修造价:约22万
案例风格:新中式
本案位于济南海珀天沅小区169平四室两厅两卫的户型设计案例,本案定位为新中式风格,整体空间以人为本,结合业主的不同需求进行空间不同的设计手法,整体风格感觉以大气自然的方式为主,居住起来更加的舒适便利,让整体空间更加的通透
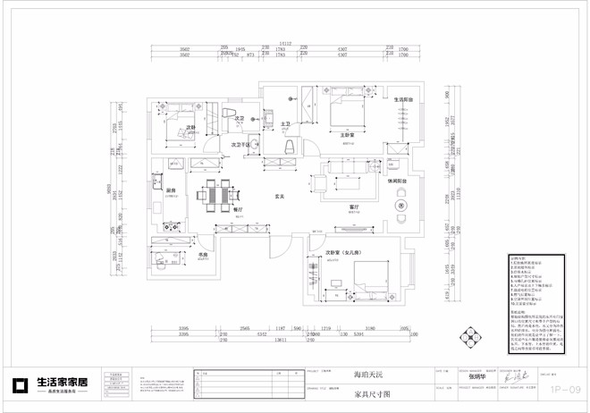
户型图
本案位于济南海珀天沅小区169平四室两厅两卫的户型设计案例,整体风格定位为新中式风格,整体空间设计较为合理,每个空间均是结合业主的要求做的独立设计,户型通透,各个空间均有独立的采光,空间利用率较高,使用起来更加的舒适。
客厅
本案位于济南海珀天沅小区169平四室两厅两卫的户型设计案例,本案风格定位为新中式风格,整体空间色调以红木色调为主,墙面采用以白色配以木质线条,与整体的风格相互统一,沙发背景墙的装饰画更是凸显整体新中式风格的亮点。
卧室
本案位于济南海珀天沅小区169平四室两厅两卫的户型设计案例,卧室设计主卧以新中式风格为主,两个次卧室均已现代风格的设计感觉,根据居住空间人员的不同进行了单独的设计方式,更加以人为本。
餐厅
本案位于济南海珀天沅小区169平四室两厅两卫的户型设计案例,餐厅空间整体以新中式风格进行贯穿,餐边柜的设计满足了日常的生活与展示的需要,玄关设计较为简单,一些简单的留白让空间更加的通透。
