在线咨询
免费设计
免费量房
免费验房
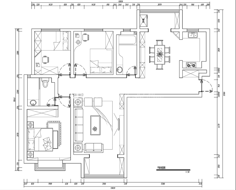
京东生活家 / 装修案例 / 济南盛景家园146平新中式风格设计案例

济南盛景家园146平新中式风格设计案例

2017-12-15 10:15:34 查看人数 452

案例面积:120

案例户型:三居室

装修造价:约17.8

案例风格:中式

济南盛景家园146平新中式风格设计案例

案例设计师

已有 人预约

查看主页

精品案例推荐

查看更多
光明璟宸 96㎡ 复古风

光明璟宸 96㎡ 复古风

锦粼天曜 190㎡ 意式轻奢

锦粼天曜 190㎡ 意式轻奢

滇池澜庭 140㎡ 意式风

滇池澜庭 140㎡ 意式风

绿地东海岸 136㎡ 美式混搭风

绿地东海岸 136㎡ 美式混搭风

Hi~ 我是小葵 装修报价可以找我哟~