济南财富一号 19万打造123㎡简欧风格
2017-11-03 09:50:38 查看人数 1825
案例面积:123㎡
案例户型:三居室
装修造价:约19.6万
案例风格:简欧
本案列位于济南市财富一号,该户型为123平,整体设计风格定义为简欧风格,整体风格多元丰富。考虑到生活的便利性,在简欧的基础上更加偏重实用性,整体装修设计简约、典雅,富有艺术生活的气息。
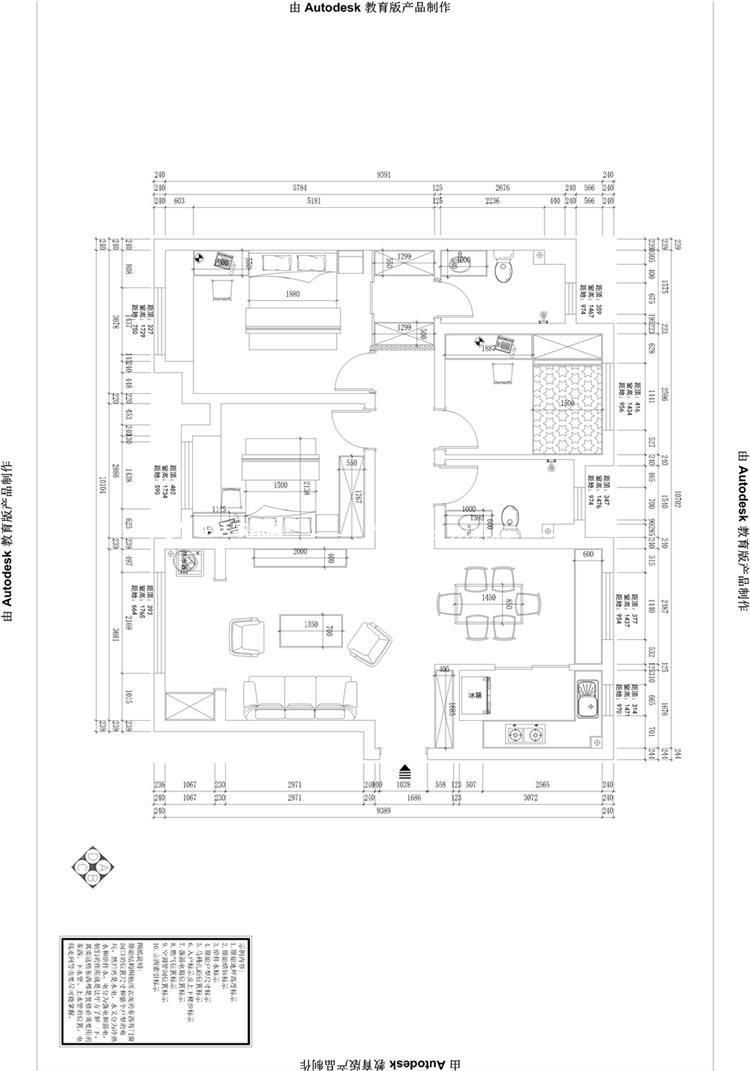
户型图
本案户型面积为123平,该户型非常方正,透光性好,南北通透,通风、采光俱佳。设计师考虑卧室卫生间正对,把卫生间设计成隐形衣柜,当想进入时,推开衣柜的推拉门便可进入,既保证了业主的储物需求又解决床对卫生间的尴尬。
客厅
从一进门的玄关到客厅的吊顶,墙面的色彩还有软装的搭配都考虑得较为细致。家具、地毯采用西方复古造型的图案,与整体氛围和基调相和谐,而且成一系列,风格统一。具有西方特色风格的雕塑、挂画、烛台等装饰品,从细节上体现简欧风格。
