济南漫山香墅麓府 32万打造237㎡美式风格
2017-10-31 10:55:13 查看人数 1547
案例面积:237㎡
案例户型:别墅室
装修造价:约32.8万
案例风格:中式
本案例位于济南市漫山香墅麓府。整体设计风格定为中式风格,该户型237平,颜色厚重而又沉稳,造型朴素而又优美,庄重而又典雅,独特的中国特有色彩的选择体现了中式的文化深沉与厚重,整体的布局形式追求对称庄重。
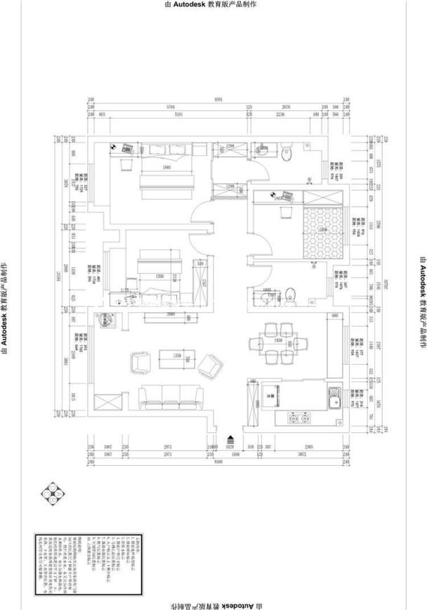
户型图
客厅
客厅在家具的选择还是讲究实用性和舒适性。客厅电视背景墙跟沙发背景墙分别选用壁画和大理石,再配上深色的家具,沙发即有中式特色,又比简单中式木质家具多了些舒适性,搭配几个黄色、深蓝色的靠枕,使人眼前一亮,放置一盆绿植,使整个空间更加具生机活力。
餐厅
餐桌座椅和客厅沙发同一色系,餐厅和客厅颜色和谐统一,餐厅对面墙上配有中式挂画,更添几分雅致。考虑到业主的生活习惯,在旁边还设有餐边柜,随手就可以放置东西,还有业主想要的小型吧台,可以在休闲时光中喝点小酒。
